Campo Mijas

For sale Townhouse Costa Del Sol Campo Mijas € 429.000,-

Ref.no: RSOR5226271
Price: € 429.000,-

1-7980e48d732b6fc85c14b43b94d2aa54.jpg

For sale Townhouse Costa Del Sol Campo Mijas € 429.000,-

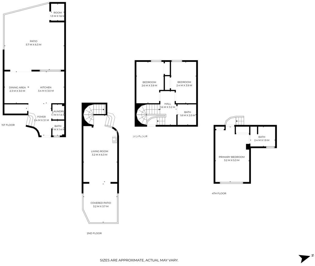
Bedrooms3
Bathrooms3
Living area155m²
Poolyes
Gardenyes
Parkingno
Setting: Close To Town, Close To Schools
Pool: Communal, Private
Climate Control: Air Conditioning, Fireplace
Views: Country, Panoramic
Features: Fitted Wardrobes, Near Transport, Private Terrace, Tennis Court, Storage Room, Utility Room, Ensuite Bathroom, Barbeque, Double Glazing
Ref.no: RSOR5226271
Price: € 429.000,-

More information ›››
For sale Townhouse Costa Del Sol Campo Mijas € 429.000,-

Spectacular Townhouse in Campo MijasLocated in a residential complex with a swimming pool, tennis court, and beautiful gardens, this property offers the best of Campo Mijas: comfort, privacy, and outdoor spaces for the whole family.This two-story southwest-facing townhouse enjoys spectacular mountain and sea views. The rear terrace, accessible from the kitchen, features a fantastic barbecue area, while the main terrace off the living room is perfect for relaxing and enjoying the sun and sunsets.Ground floor: Open-plan kitchen with dining area, double-height living room, guest toilet, utility room with water heater, laundry area, and several storage spaces.First floor: Three bedrooms, including the master with en-suite bathroom, and a shared bathroom for the other rooms.The property also includes a garage with direct access to the home, providing extra convenience for everyday life.Bus stop just 1 minute away, Los Boliches and Cala de Mijas beaches 10 minutes by car, schools, supermarkets, and shopping centers 6–7 minutes away, and nearby parks.A unique property that combines stunning views, comfort, and location — perfect for those looking for a complete home on the Costa del Sol.

Alternatives

1-7980e48d732b6fc85c14b43b94d2aa54.jpg

For sale Townhouse Costa Del Sol Alora € 395.000,-

Price € 395.000,-
More information
1-7980e48d732b6fc85c14b43b94d2aa54.jpg

For sale Townhouse Costa Del Sol Casares Playa € 425.000,-

Price € 425.000,-
More information
1-7980e48d732b6fc85c14b43b94d2aa54.jpg

For sale Townhouse Costa Del Sol Las Lagunas € 510.000,-

Price € 510.000,-
More information
1-7980e48d732b6fc85c14b43b94d2aa54.jpg

For sale Townhouse Costa Del Sol Mijas Golf € 340.000,-

Price € 340.000,-
More information
Disclaimer | Links