Benalmadena

For sale Semi-Detached House Costa Del Sol Benalmadena € 760.000,-

Ref.no: RSOR5208523
Price: € 760.000,-

1-7980e48d732b6fc85c14b43b94d2aa54.jpg

For sale Semi-Detached House Costa Del Sol Benalmadena € 760.000,-

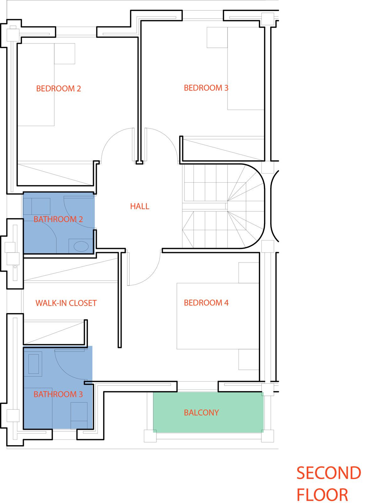
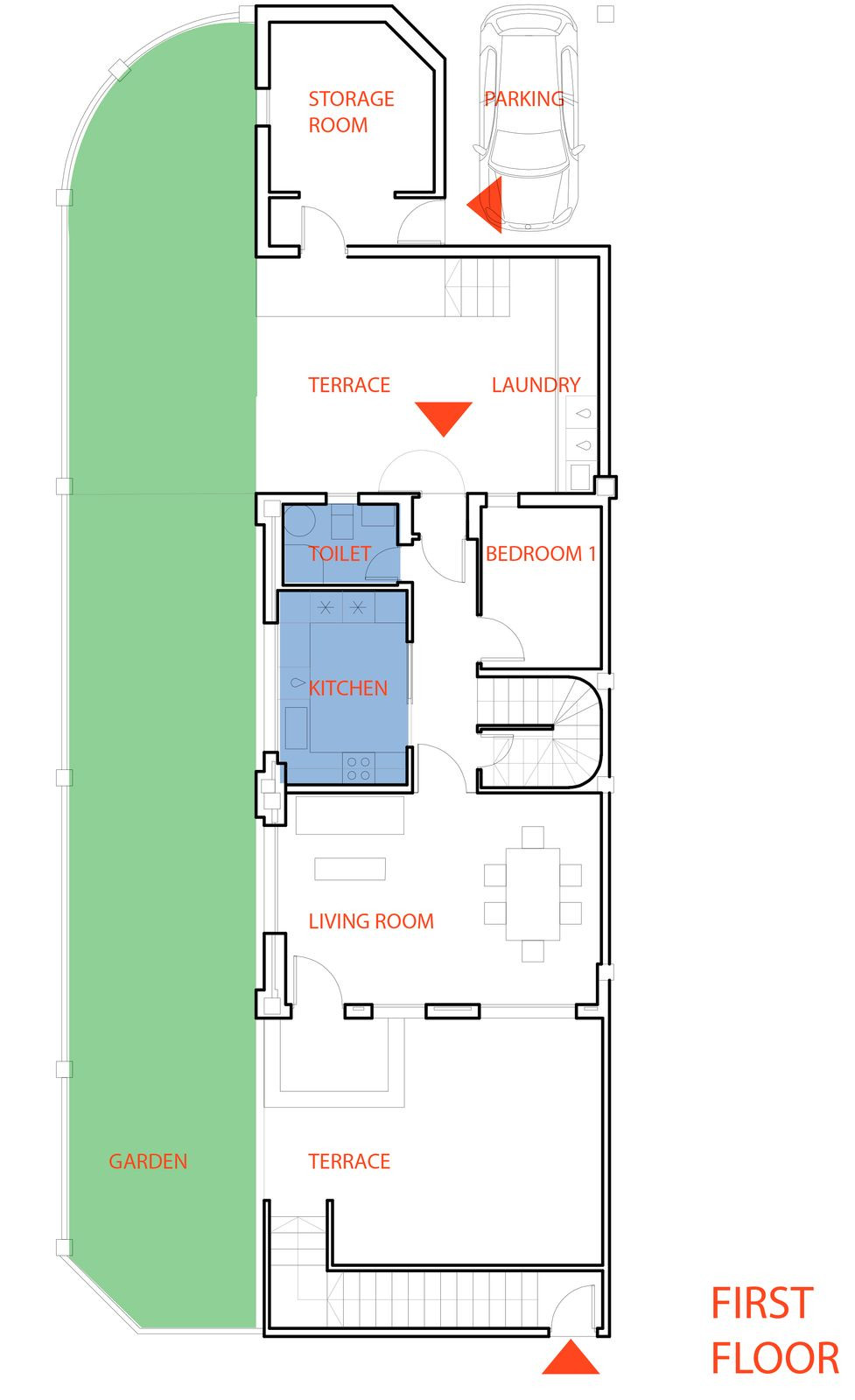
Bedrooms4
Bathrooms3
Lot size110m²
Poolno
Gardenyes
Parkingyes
Built year2001
Setting: Town, Commercial Area, Close To Shops, Close To Sea, Close To Town, Close To Schools
Orientation: South West
Condition: Excellent, Recently Renovated
Climate Control: Air Conditioning
Views: Sea, Mountain, Urban
Features: Covered Terrace, Fitted Wardrobes, Near Transport, Private Terrace, Games Room, Storage Room, Ensuite Bathroom, Barbeque, Fiber Optic
Furniture: Fully Furnished
Kitchen: Fully Fitted
Garden: Private, Easy Maintenance
Security: Entry Phone
Parking: Garage, Private
Category: Resale
Ref.no: RSOR5208523
Price: € 760.000,-

More information ›››
For sale Semi-Detached House Costa Del Sol Benalmadena € 760.000,-

**Stunning 4-Bedroom Semi-Attached Townhouse for Sale in Benalmádena – Modern Comfort and Prime Location!**

Discover this beautifully renovated townhouse featuring **4 spacious bedrooms**, **3 bathrooms**, a **bright living room**, and a **fully equipped and modern kitchen**.

Enjoy all-day sunshine with **two large terraces (50 m² total)** facing east and west, plus a private garden (48 m²) with a play area (27 m²), laundry space, separate storage room, and private parking.

The property is equipped with triple-glazed windows, high-quality external wall insulation, a bioclimatic pergola with LED lighting, ceramic and wooden floors, and built-in wardrobes.

Ideally located just steps away from public transport, schools, supermarkets, and with easy access to the motorway — a perfect family home in an unbeatable area!

** Possibility to expand with a separate basement unit of approximately 60 m² **

### **Technical Features**
**Windows:** EUROFUTUR system by KÖMMERLING, glass type PL ULTRA N 4/20/6 mm.
**Bioclimatic Pergola:** 8x4 m, reinforced frame, LED lighting, brand *Solisysteme*.
**Front Terrace Awning:** German brand *Markilux*.
**External Wall Insulation:** Supafil 034 mineral wool (blown-in insulation) offering:
*Excellent **thermal comfort**, eliminating cold-wall effect and ensuring even indoor temperature distribution.
*Added **acoustic insulation** for noise reduction.
*Eco-friendly** material, helping reduce CO₂ emissions.
*Moisture-resistant*, water-repellent, non-hygroscopic.
*Does not support mold or bacteria growth. --- ###

**Legal Notice** In accordance with Decree 218/2005 on consumer information in the sale and rental of properties in Andalusia: **Notary, registration, transfer tax (ITP), financial fees, and other costs related to the purchase are not included in the listed price.**

Alternatives

1-7980e48d732b6fc85c14b43b94d2aa54.jpg

For sale Semi-Detached House Costa Del Sol Benalmadena Costa € 799.000,-

Price € 799.000,-
More information
1-7980e48d732b6fc85c14b43b94d2aa54.jpg

For sale Semi-Detached House Costa Del Sol Estepona € 740.000,-

Price € 740.000,-
More information
1-7980e48d732b6fc85c14b43b94d2aa54.jpg

For sale Semi-Detached House Costa Del Sol Marbella € 670.000,-

Price € 670.000,-
More information
1-7980e48d732b6fc85c14b43b94d2aa54.jpg

For sale Semi-Detached House Costa Del Sol Estepona € 836.000,-

Price € 836.000,-
More information
Disclaimer | Links